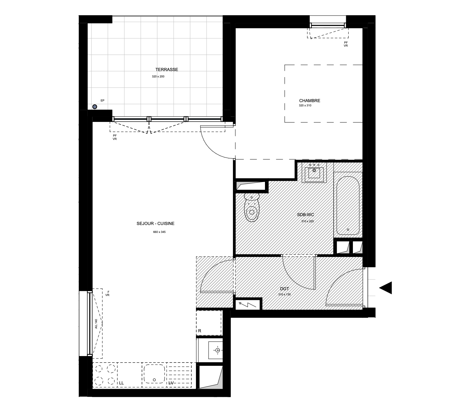
En retrait du cœur du village de Château Gombert dans une copropriété de standing construite en 2025, cet appartement de 42 m² est composé d’une chambre et d’une terrasse.
Situé en rez-de-chaussée, il se compose d’une pièce de vie agréable avec cuisine ouverte, prolongée par une jolie terrasse, idéale pour profiter d’un espace extérieur intime et frais.
Une chambre ainsi qu’une salle de bain conforme aux normes PMR, alliant accessibilité et confort moderne.
Le bien bénéficie d’une exonération de taxe foncière pendant 2 ans. A l’issue de cette période, l’estimation de la taxe foncière est de 1021 € par an.
Une place de parking en supplément vient compléter ce bien.
Dossier complet avec photos sur demande. DPE : C. Mandat de vente n°175 Honoraires à la charge du vendeur Non détention de fonds.
www.georisques.gouv.fr Contact : Christelle RECAGNO 06 46 60 06 77











