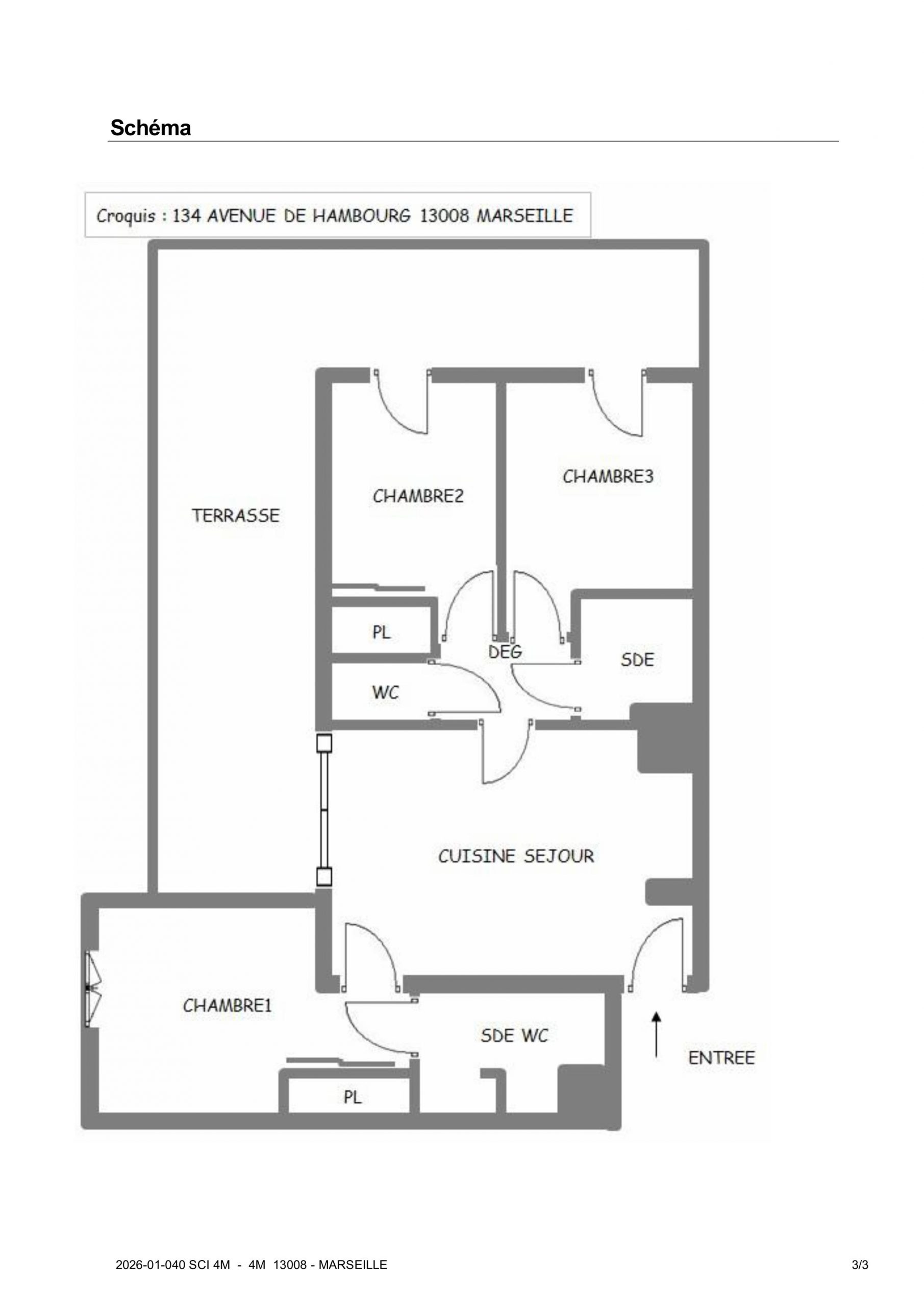
Au cœur du quartier de Bonneveine, au sein de la résidence de standing LE BAO signée par le cabinet d’architectes marseillais Poissonnier Ferran, ce bel appartement neuf de 70 m² se situe au 7ᵉ étage et offre trois chambres ainsi qu’une vaste terrasse de 36 m². La résidence propose des prestations haut de gamme avec une piscine de 20 mètres et un solarium, à l’abri des regards, offrant un cadre de vie privilégié où la qualité architecturale, la noblesse des matériaux et la générosité des espaces ont été soigneusement pensées. Orienté Sud et Est, l’appartement séduit par son architecture élégante, son agencement fonctionnel et sa luminosité naturelle, tandis que la vue entièrement dégagée sur la ville et les collines assure un ensoleillement optimal tout au long de la journée. Un box fermé possible en sus (15 k€). Le bien bénéficiant par ailleurs de la garantie décennale. Résidence adaptée au PMR. Espace de stationnement deux roues sécurisé. Bien soumis au régime de la copropriété, avec des charges annuelles de 3 190 € comprenant l’eau chaude et le chauffage. DPE :/B Mandat de vente n°177, honoraires à la charge du vendeur, non détention de fonds, informations sur les risques disponibles www.georisques.gouv.fr. Contact : Isabelle Clement – 06 O3 26 59 64 .












